0963243809
guuhousemkt@gmail.com
The Peak Midtown - Căn hộ mang phong cách Hiện đại – Đương đại, tối giản nhưng sang trọng, nổi bật với những gam màu điểm nhấn tinh tế.
Không gian sống tại The Peak Midtown được thiết kế với tinh thần hiện đại, sang trọng nhưng vẫn ấm cúng, gần gũi. Guu House đã khai thác tối đa diện tích, tạo nên căn hộ lý tưởng cho gia chủ yêu thích sự tối giản và tinh tế.
Xem thêm: Thiết kế nội thất căn hộ phong cách hiện đại - tối giản tại TP.HCM
1. Thông Tin Dự Án
• Tên công trình: Căn hộ 2 phòng ngủ - The Peak M8 Midtown - Phú Mỹ Hưng
• Chủ đầu tư: Mr Thành
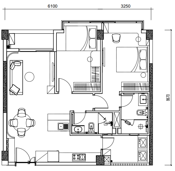
• Diện tích: 80m²
• Địa điểm: Phú Mỹ Hưng, Quận 7, TP.HCM
• Phong cách: Hiện đại đương đại
2. Chi Tiết Thiết Kế Nội Thất Căn Hộ
Mặt Bằng Bố Trí Nội Thất

Phòng Khách Bếp với tông màu trắng - vang đỏ - xanh olive nổi bật tạo điểm nhấn mạnh mẽ nhưng vẫn hài hòa với tổng thể.



Phòng Ngủ Master


Phòng Ngủ Bé

Phòng Giặt Phơi - Tủ Lồng Chim

3. Liên Hệ Tư Vấn Thiết Kế & Thi Công Nội Thất
Bạn đang tìm kiếm một đơn vị thiết kế và thi công nội thất chuyên nghiệp tại TP.HCM? Guu House sẽ giúp bạn hiện thực hóa không gian sống hoàn hảo.
Liên hệ ngay để nhận báo giá & tư vấn miễn phí!
Hotline: 0963.243.809
Email: guuhousemkt@gmail.com
Website: www.guuhouse.com
Địa chỉ: 140 Nguyễn Văn Khối, Phường 08, Quận Gò Vấp, Tp.HCM