0963243809
guuhousemkt@gmail.com
Thông tin dự án
• Tên công trình: Căn hộ 2 phòng ngủ - The Peak Midtown Phú Mỹ Hưng
• Chủ đầu tư: Mr.Thành
• Diện tích: 80m²
• Công năng : 2 phòng ngủ, 1 khu vực giặt - phơi và thiết kế bếp liền phòng khách
• Địa điểm: Phú Mỹ Hưng, Quận 7, TP.HCM
• Phong cách: Hiện đại - đương đại
• Đơn vị thiết kế – thi công: Guu House
Cùng Guu House - khám phá căn hộ Midtown Phú Mỹ Hưng - một không gian với thiết kế Modern Minimalism tối giản, hiện đại nhưng mang cá tính rất rõ nét qua những gam màu điểm nhấn đầy tinh tế.
Không chỉ là không gian sống lý tưởng, từng lựa chọn màu sắc, chất liệu và bố cục đầy phá cách đã thay lời cho phong cách của gia chủ: mạnh mẽ, khác biệt và đầy tinh tế.
Thiết kế tại căn hộ Midtown Phú Mỹ Hưng mang tinh thần tối giản nhưng không hề an toàn hay nhạt nhòa. Guu House - đơn vị thiết kế thi công căn hộ uy tín TP.HCM đã khéo léo kết hợp đường nét hiện đại với bảng màu nổi bật, giúp không gian vừa sang trọng, vừa ấm cúng, lại đủ khác biệt để thể hiện trọn vẹn gu thẩm mỹ của gia chủ.
Tạo dấu ấn cá nhân với những gam màu điểm nhấn tinh tế trong từng góc nhỏ với thiết kế nội thất căn hộ Midtown Phú Mỹ Hưng Q.7
Ngay từ những ngày đầu trò chuyện, anh Thành đã vẽ nên mong ước về tổ ấm của mình tại The Peak Midtown Phú Mỹ Hưng: một không gian với màu sắc cá tính, bố cục hiện đại, tinh tế nhưng vẫn ấm cúng và sang trọng.
Với anh, nhà không chỉ đơn thuần là nơi để trở về và nghỉ ngơi sau một ngày dài, mà còn là không gian nuôi dưỡng cảm xúc, kết nối yêu thương - nơi mỗi thành viên bước vào đều cảm nhận được sự gần gũi, ấm áp trong từng góc nhỏ.
Để thi công và thiết kế nội thất chung cư 80m2, mọi chi tiết đều được Guu House cân nhắc kỹ lưỡng, từ việc bố trí nội thất đến lựa chọn màu sắc và ánh sáng. Điều đó giúp căn hộ được tối ưu diện tích và mang đến cảm giác thoáng đãng, dễ chịu nhưng vẫn ấm áp, gần gũi “chuẩn gu” của gia chủ.

Thiết kế nội thất căn hộ Midtown Phú Mỹ Hưng Q.7 với phong cách Modern Minimalism
Chính sự khéo léo trong việc phối hợp những gam màu tương phản mà không gây rối mắt đã giúp không gian trở thành một dấu ấn rất riêng - một mẫu căn hộ 2 phòng ngủ vừa hiện đại, vừa có chiều sâu thẩm mỹ, khiến bất kỳ ai bước vào cũng dễ dàng cảm nhận được phong cách sống của chủ nhân.
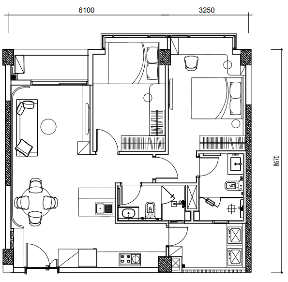
Bản vẽ thiết kế căn hộ đẹp, sang trọng và tinh tế
Bản vẽ thiết kế tại căn hộ Midtown Phú Mỹ Hưng được phác thảo dựa trên mặt bằng hiện trạng, tận dụng tối đa không gian sẵn có mà không cần thay đổi kết cấu.
Để thiết kế nội thất chung cư 80m2 vừa bắt mắt mà vẫn tối ưu diện tích căn hộ, nội thất phải được bố trí thông minh: từ phòng khách, phòng bếp đến các khu vực chức năng. Điều này sẽ giúp căn hộ trông thoáng rộng hơn mà vẫn thuận tiện cho sinh hoạt hằng ngày, đồng thời vẫn giữ được vẻ sang trọng, tinh tế của căn hộ phong cách tối giản.

Bản vẽ thiết kế căn hộ đẹp tại The Peak Midtown Phú Mỹ Hưng
Từng khu vực trong căn hộ Midtown Phú Mỹ Hưng được Guu House - đơn vị thi công nội thất trọn gói quận 7 bố trí khéo léo, đảm bảo tiện ích và trải nghiệm cảm xúc liên tục cho gia chủ. Từ ánh sáng tự nhiên, đường nét nội thất, đến cách sử dụng màu sắc - tất cả đều nhằm mang lại một tổ ấm hiện đại nhưng đầy cảm xúc, nơi nghỉ ngơi và vun vén cảm xúc sau một ngày dài.
Phòng ngủ Master tại căn hộ Midtown Phú Mỹ Hưng mang đến một cảm giác êm dịu, nhẹ nhàng ngay từ khi bước vào phòng. Gam màu trung tính dịu mắt kết hợp cùng nội thất gỗ ấm áp tạo nên không gian nghỉ ngơi chuẩn “resort tại gia” - nơi gia chủ có thể buông bỏ mọi căng thẳng sau khi kết thúc một ngày bận rộn.

Thiết kế phòng ngủ Master của Guu House - đơn vị thiết kế thi công căn hộ uy tín TP.HCM.
Hệ cửa sổ lớn đón trọn ánh sáng tự nhiên, giúp căn phòng luôn thông thoáng và tràn đầy năng lượng.
Bàn làm việc - trang điểm với đường bo cong mềm mại được xử lý khéo léo, thông minh để tiết kiệm diện tích nhưng vẫn đảm bảo tính thẩm mỹ.

Thiết kế nội thất căn hộ Midtown Phú Mỹ Hưng Q.7 với phòng ngủ chuẩn thiết kế Minimalism
Từng chi tiết được Guu House chăm chút tinh tế nhằm mang đến một không gian thư giãn trọn vẹn, nâng niu giấc ngủ và cảm xúc của gia chủ mỗi khi trở về nhà.
Phòng ngủ của bé được thiết kế như một góc nhỏ dịu dàng và tươi sáng, nơi mỗi chi tiết đều góp phần nuôi dưỡng sự sáng tạo và cảm xúc của con.
Tone xanh pastel kết hợp cùng màu trắng tinh khôi tạo nên một không gian vừa nhẹ nhàng, vừa tươi mới, giúp bé luôn cảm thấy dễ chịu khi trở về phòng.
Giường ngủ bệt an toàn, đi kèm hệ tủ âm và các ngăn lưu trữ thông minh giúp căn phòng luôn thoáng rộng, gọn gàng. Góc học tập được bố trí ngay cạnh giá sách mở, tạo nên một không gian học mà chơi - chơi mà học đầy cảm hứng. Ánh sáng tự nhiên chan hòa qua ô cửa lớn khiến căn phòng lúc nào cũng tràn năng lượng, đúng chất không gian dành cho trẻ.

Phòng ngủ bé với gam màu xanh pastel và trắng tinh khôi
Tất cả đồ nội thất trong nhà, Guu House ưu tiên sự an toàn và chất lượng vật liệu. Các chi tiết nội thất gỗ đều được sử dụng từ những dòng gỗ cao cấp, đạt tiêu chuẩn an toàn sức khỏe, hoàn toàn không chứa formaldehyde (formandehit) - chất dễ gây ảnh hưởng xấu đến hệ hô hấp và sự phát triển của trẻ.
Với tôn chỉ không đánh đổi chất lượng vì giá cả, từng món nội thất đều được chọn lựa kỹ lưỡng nhằm mang đến một không chỉ đẹp mắt, bền chắc mà còn mang lại sự an tâm tuyệt đối cho gia đình.
Không gian phòng khách - bếp phong cách Minimalism: tinh tế, gọn gàng nhưng vẫn thể hiện chất riêng của gia chủ
Từ mong muốn một thiết kế căn hộ Midtown Phú Mỹ Hưng gọn gàng, sang trọng nhưng vẫn mang màu sắc cá tính của gia chủ, phong cách Minimalism đã trở thành lựa chọn lý tưởng. Nhưng Minimalism ở đây không phải là “trắng - trơn - trống” như nhiều người vẫn nghĩ. Nó là sự cân bằng: giữa công năng và thẩm mỹ, giữa giản dị và nổi bật.

Mẫu thiết kế căn hộ Phú Mỹ Hưng của Guu House
Bộ sofa màu xanh olive trở thành điểm nhấn trung tâm, tạo sự cân bằng màu sắc trong bố cục. Nổi bật với sàn đá marble vân mây sáng màu phản chiếu ánh sáng nhẹ nhàng, làm nổi bật tone màu chủ đạo: trắng - nâu - đỏ rượu vang.
Thiết kế bếp liền phòng khách giúp ánh sáng lan tỏa tự nhiên, tạo cảm giác không gian như được mở rộng hơn gấp đôi.

Thiết kế bếp liền phòng khách gọn gàng, ấm áp giúp nung nấu tình cảm gia đình
Phòng bếp trở nên gọn gàng, ấn tượng nhờ hệ tủ bếp âm tường được thiết kế phẳng, giấu tay nắm, tạo một mặt phẳng liền mạch như “hòa tan” vào kiến trúc.
Các thiết bị như tủ lạnh, lò nướng, máy rửa chén cũng được xử lý âm, mang lại tổng thể hiện đại và đồng bộ.
Khu vực giặt phơi tại căn hộ Midtown Phú Mỹ Hưng được Guu House - đơn vị thi công nội thất trọn gói quận 7 thiết kế theo tinh thần tối giản, tập trung vào tính tiện dụng. Máy giặt, máy sấy được bố trí gọn gàng, kết hợp hệ tủ lưu trữ thông minh giúp không gian luôn ngăn nắp và sạch sẽ.

Phòng giặt tinh giản, ngăn nắp nhưng đầy đủ công năng
Phòng giặt dễ dàng lấy được ánh sáng tự nhiên, hạn chế ẩm mốc - một điều rất quan trọng đối với căn hộ. Tất cả tạo nên một góc chức năng nhỏ nhưng được tổ chức khoa học, tối ưu diện tích và mang lại cảm giác nhẹ nhàng, thoáng đãng.
3. Guu House - đơn vị thiết kế thi công căn hộ uy tín TP.HCM
Đối với các căn hộ hiện đại nói chung và các mẫu căn hộ 2 phòng ngủ nói riêng, việc tối ưu diện tích và tính toán từng mét vuông sao cho không gian vẫn thoáng đãng, mềm mại và không bị “cứng nhắc” là yếu tố then chốt trong thiết kế. Vì vậy, thiết kế thi công trọn gói trở thành lựa chọn tối ưu, mang lại sự đồng bộ trong thẩm mỹ và hạn chế tối đa những phát sinh trong quá trình hoàn thiện.
Hơn cả chi phí hay tiến độ, điều quan trọng nhất là tìm được đội ngũ giàu kinh nghiệm thực tế. Mỗi tòa nhà đều có những giới hạn kỹ thuật riêng, và chỉ những đơn vị từng “va chạm hiện trường” mới có thể đưa ra giải pháp chuẩn xác ngay từ đầu.
Tại Quận 7, ngoài thi công và thiết kế nội thất căn hộ Midtown Phú Mỹ Hưng Q.7, Guu House đã đồng hành cùng nhiều gia đình trẻ để tạo nên những không gian sống tinh giản, đương đại nhưng vẫn ấm áp. Mỗi dự án đều được xây dựng từ nhu cầu và cá tính riêng của gia chủ, để ngôi nhà không chỉ đẹp mắt mà còn trở thành nơi “tái tạo năng lượng” sau một ngày dài.
Guu House - đơn vị thiết kế thi công căn hộ uy tín TP.HCM cam kết đồng hành cùng khách hàng từ giai đoạn thiết kế, thi công cho đến quá trình sử dụng thực tế. Mỗi công trình đều được bảo chứng bằng chính sách bảo hành minh bạch, rõ ràng, giúp gia chủ hoàn toàn yên tâm về chất lượng và sự bền vững của tổ ấm theo thời gian.
Nếu bạn đang tìm kiếm ý tưởng thiết kế căn hộ Midtown Phú Mỹ Hưng hay muốn được tư vấn chuyên sâu trước khi cải tạo căn hộ, Guu House luôn sẵn sàng đồng hành và lắng nghe. Chúng tôi tin rằng bất kỳ không gian nào cũng có thể trở thành một tổ ấm “chuẩn gu”!